Issue Status: Lodge issue status.
1. Click 'Issue Update' to view issue list.

2. Click on Lodged issue status.

3. Click on 'Edit Issue'.

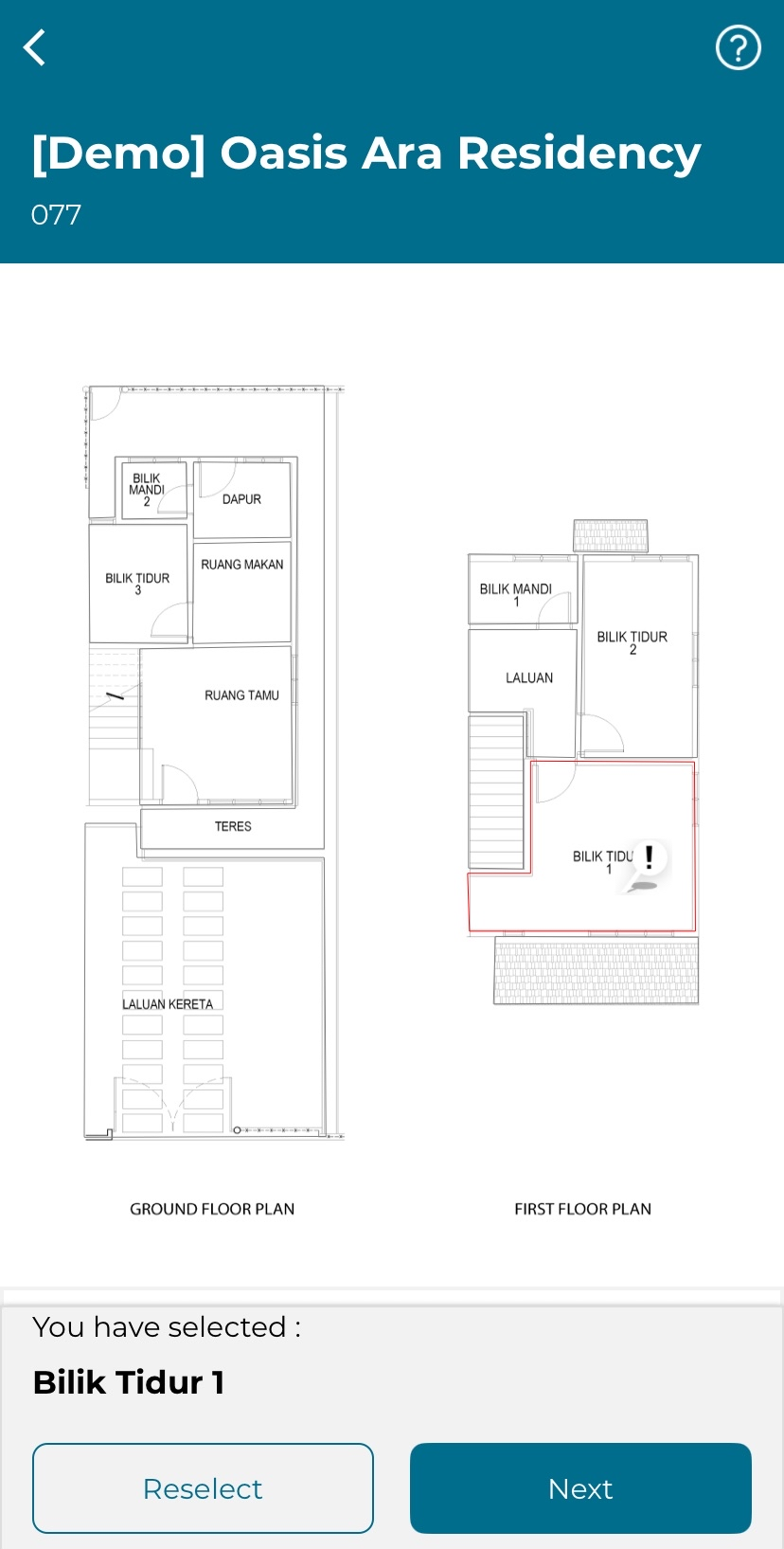
4. Owner can make changes for the location of the marker.

5. Edit the detail wanted and click 'Submit'.

Modified on: Wed, 22 Apr, 2026 at 2:58 PM
Issue Status: Lodge issue status.
1. Click 'Issue Update' to view issue list.

2. Click on Lodged issue status.

3. Click on 'Edit Issue'.

4. Owner can make changes for the location of the marker.

5. Edit the detail wanted and click 'Submit'.

Did you find it helpful? Yes No
Send feedback